曽根田貸家/熊谷市別府

曽根田貸家/熊谷市別府
TOP > 賃貸物件 
ここがポイント! ミサワホームの一戸建
建物名 曽根田 貸家 一戸建
所在地 熊谷市別府4丁目84−2
沿線 JR高崎線 篭原駅/徒歩10分 地図リンク
家賃 100,000円 共益費
礼金 2ヶ月分 敷金 2ヶ月分
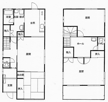
間取り 4DK 築年
物件種目 ミサワホーム
セラミック
連絡先 株式会社 光立建設 TEL:048-525-6669
お問い合わせはこちら
携帯 この情報は携帯でお持ち帰りできます。
http://www.couritu.co.jp/i/i-soneda.htm

トップページに戻る  賃貸物件一覧へ